Réalisations
Chaque projet est une occasion de faire progresser
des pratiques plus responsables.
Environnement
J’accompagne les entreprises dans l’optimisation de leurs processus environnementaux afin de réduire leur impact écologique et améliorer leur rentabilité.
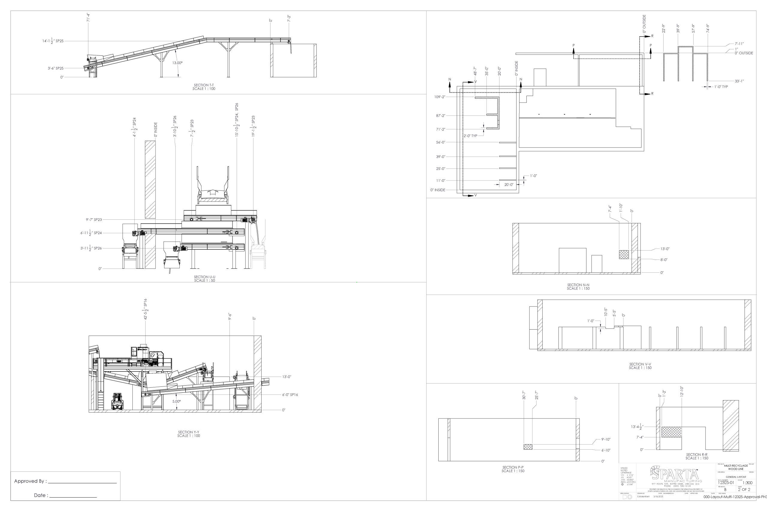
Système de conditionnement du bois recyclé
Je mène ce projet du début à la fin pour mon client, un des principaux recycleurs de résidus de CRD au Québec. Étude de faisabilité, recherche de débouchés, rédaction du plan d’affaire, financement, achat des équipements, design du système complet, gestion de la construction et des sous-traitants, etc.
Le projet, d’une envergure de 9 millions, permettra de conditionner une grande quantité de bois recyclé annuellement pour lui donner une meilleure valeur commerciale, entre autres grâce à un trieur optique et à l’intelligence artificielle.
Le projet est financé par des subventions et un prêt sans intérêt du gouvernement. Le système est en cours d’installation et sera démarré en juillet. Je fais office de gestionnaire de projet pour la phase installation.

Design d’un centre de tri de CRD complet en Abitibi
Mon client souhaite implanter le premier centre de tri de CRD dans la région de l’Abitibi-Témiscamingue.
Mon mandat a consisté à designer le centre de tri à partir d’un terrain potentiel, à quantifier les tonnages potentiels, à monter un plan d’affaire, à choisir des équipements de recyclage, à calculer les coûts d’investissement et la rentabilité du projet et à le présenter aux autorités locales.
Le projet créé un réel enthousiasme dans la communauté et devrait voir le jour en 2026. Je travaille présentement à son financement.

Étude de conditionnement pour la fine de CRD
Financé par le Fonds Ecoleader et fait en collaboration avec Innofibre, un centre de recherche collégial, ce projet visait à améliorer le débouché potentiel pour une matière orpheline dans le monde des CRD, la fine.
Les tests menés en usine et en laboratoire ont permis d’isoler des composantes recyclables dans la fine et de réduire ainsi son volume d’environ 50%. Nous prévoyons installer le système requis chez mon client dans la 2e moitié de 2025.

Appui dans le financement d’une ligne de conditionnement de plastique
Mon client est un joueur majeur dans le recyclage du plastique au Québec. La refonte de la collecte sélective l’amène à devoir faire des investissements dans son usine afin de traiter le plastique provenant des centres de tri.
Je supporte le client dans le montage financier de son projet et dans la recherche de subventions et de financement.







